Current licensing applications
This webpage details licensing applications currently in process under the Licensing Act 2003.
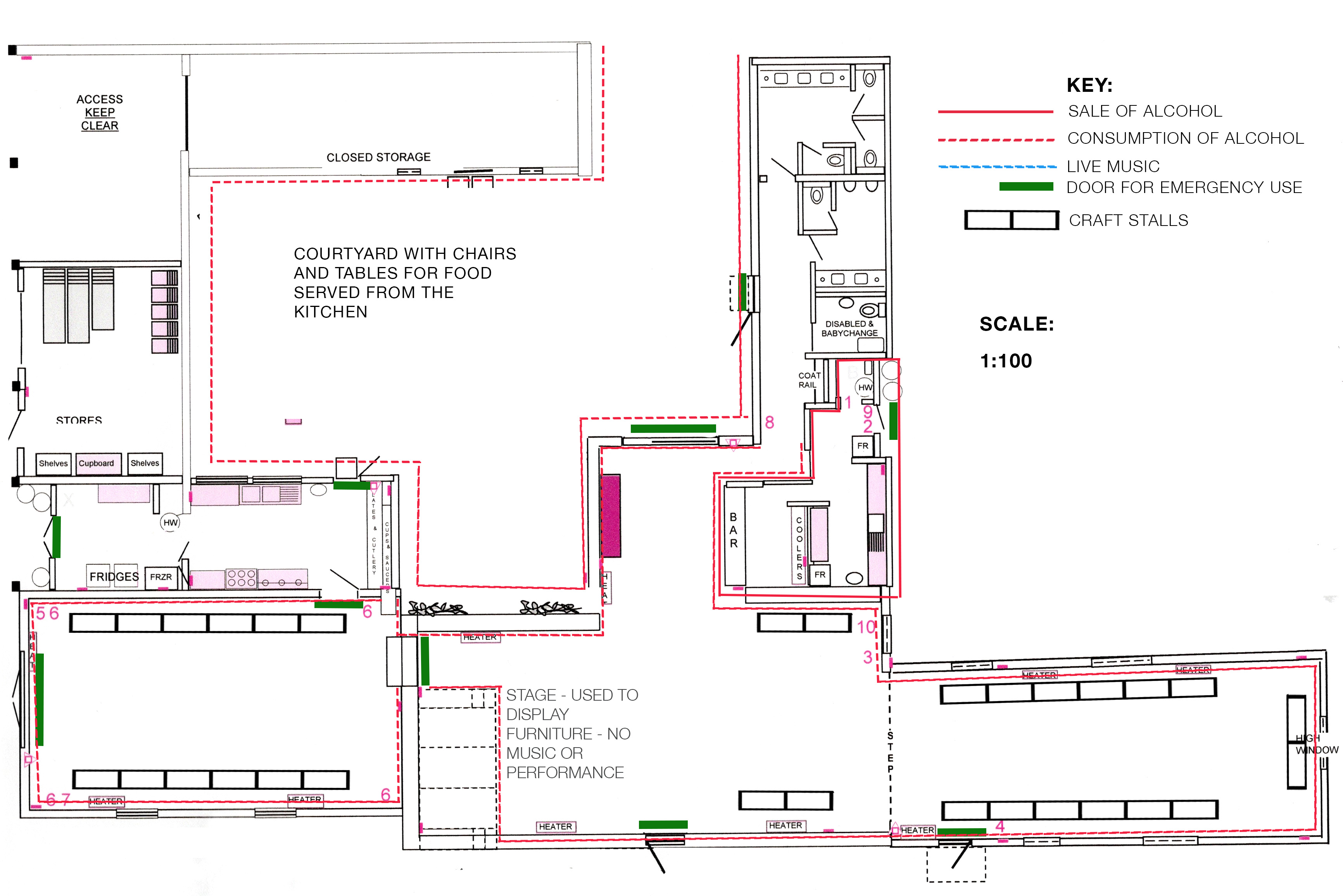
Weird & Wonderful Wood
| Reference/Type | Section 17 New Premise Licence Application |
|---|---|
| Premise: | Weird & Wonderful Wood, Haughley Park, Wetherden, Stowmarket, Suffolk, IP14 3JY |
| Applicant: | Weird & Wonderful Wood Events CIC |
| Public Consultation end date: | 21 April 2026 |
| Application Summary: |
Grounds and barn for an event, live music (outdoors) performance of dance (outdoors) anything of a similar description (indoors and outdoors) and sale and supply of alcohol (on and off the premises) |
| Documentation: | Please read Weird & Wonderful Wood application and the Event Conditions for Part M, and the Barn Plan, and the Site plan |
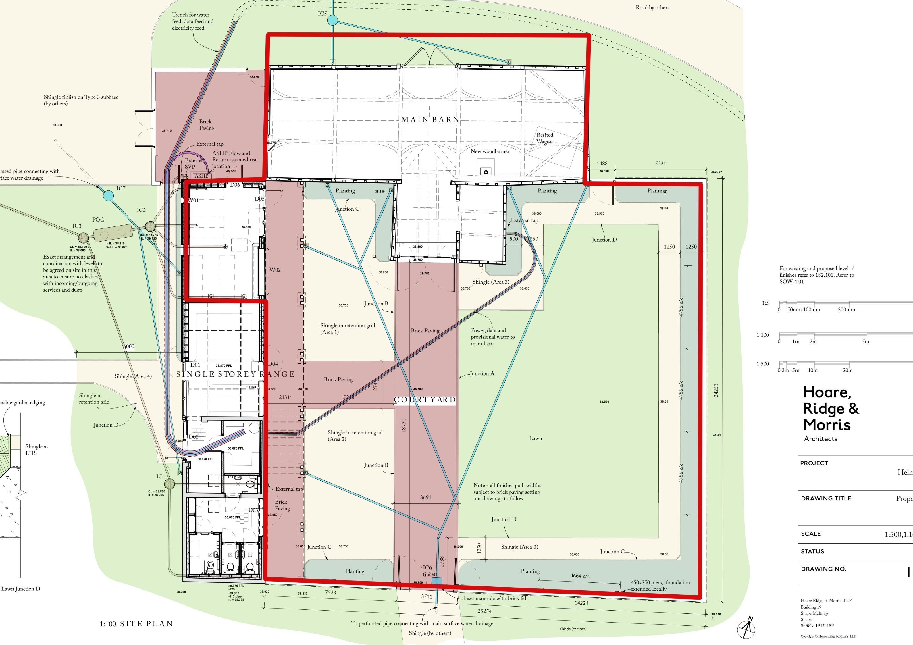
Guildenacre Ltd, Helmingham
| Reference/Type: | Section 17 New Premise Licence Application |
|---|---|
| Premise: | Guildenacre Ltd, C/O Helmingham Hall, Helmingham, Stowmarket, Suffolk, IP14 6EF |
| Applicant: | Guildenacre Ltd |
| Public Consultation end date: | 22 April 2026 |
| Application Summary: | Small cafe and events area, sale and supply of alcohol on the premises, films, live music and recorded music (outdoors) |
| Documentation: | Please read Final application Guildenacre Ltd, and the Appendix A Guildenacre, and the Site plan, and Plan 2 and Plan 3 |
Brome & Oakley Community Club
| Reference/Type: | Section 84/Application to vary a Club Certificate |
|---|---|
| Premise: | Brome & Oakley Community Club, Brome & Oakley Village Hall, The Street, Brome, Eye IP23 8AE |
| Applicant: | Brome & Oakley Community Club |
| Public Consultation end date: | 29 April 2026 |
| Application Summary: | To vary the hours for sale and supply of alcohol for consumption on the premise |
| Documentation: | Please read Brome & Oakley Community Club application |
Bramford Cock
| Reference/Type: | Section 41A/Minor Variation to a Premise Licence |
|---|---|
| Premise: | Cock Inn, The Street, Bramford, Ipswich IP8 4ED |
| Applicant: | Punch Taverns Ltd, Jubilee House, Second Avenue, Burton Upon Trent, DE14 2WF |
| Public Consultation end date: | 27 April 2026 |
| Application Summary: | To submit a new plan to show new layout and amend the opening hours |
| Documentation: | Please read Bramford Cock application, please read Bramford Cock plan. |
Comment on a licensing application
Representations must be made in writing for the attention of the Licensing Team, Mid Suffolk District Council (as the Licensing Authority) at Endeavour House, 8 Russell Road, Ipswich IP1 2BX, or by email to licensingteam@baberghmidsuffolk.gov.uk
We have published guidance on how to comment on a licence.
It is an offence knowingly or recklessly to make a false statement in connection with an application and the maximum fine for which a person is liable on summary conviction for the offence is unlimited.